Дом из бруса под усадку 7х9 СНТ Порзолово. Объект сдан 01.04.2022
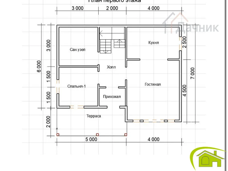
- Тип сооружения: Дом из бруса под усадку.
- Размеры: 7х9м террасой.
- Стоимость строительства: 1 994 750 руб.
- Место: Ломоносовский р-н., СНТ "Порзолово".
Проект: за основу взят Дом из бруса 7х9м. Дм-85 из каталога
Посмотрите видеообзор на этот проект
Вы можете заказать у нас такой же или похожий дом, оставьте заявку и наш специалист свяжется с вами для подбора идеального проекта.

